Categorie: Tuinhuis
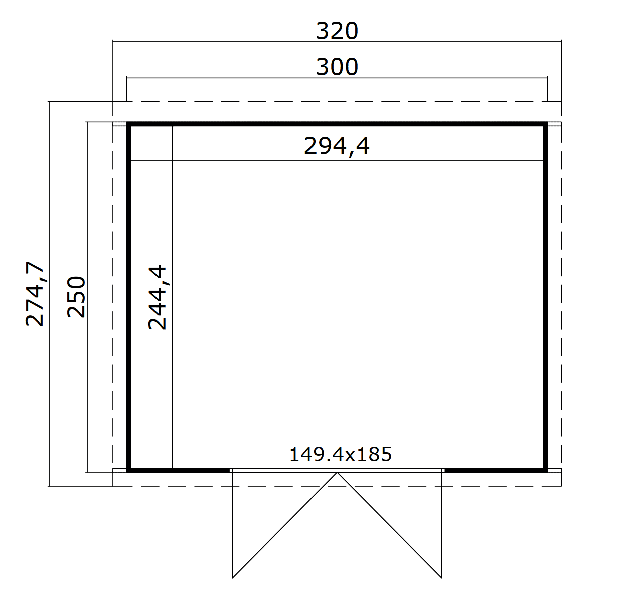
Type: Tuinhuis Lotta 300×250 28mm met lessenaarsdak. Lekker je spullen uit het zicht door de dubbele dichte draaideur.
Ben jij op zoek naar een kleiner model dan verwijzen we je naar de afdeling hoge tuinkasten.
Tuinhuis Lotta is leverbaar in 5 uitvoeringen
-Onbehandeld
-Platinum Grey
-Platinum Grey met wit; deuren, ramen, gevellijstwerk, afdeklijsten en balkhout worden geleverd in de kleur crème wit.
-Carbon Grey
-Carbon Grey met wit; deuren, ramen, gevellijstwerk, afdeklijsten en balkhout worden geleverd in de kleur crème wit.
Uitvoering in onbehandeld:
Het hout is onbehandeld vurenhout en deze dien je te schilderen met transparante beits of dekkende beits.
De fabrikant adviseert ook de binnenzijde te schilderen om kromtrekken van de planken te voorkomen.
Door deze bewerking zal het tuinhuis langer meegaan en er fraaier uitzien.
Uitvoering Verfcoating :
Een verfbehandeling geeft uw tuinhuis een belangrijke eerste bescherming voor de duur van ongeveer 3 jaar. Het wandhout, dakbalken, lijstwerk en de deuren worden bij deze behandeling rondom (4- zijdig) gespoten. Het dakhout krijgt een enkelzijdige behandeling.
Het grote voordeel van deze behandeling is dat het hout hiermee een belangrijke eerste goede bescherming krijgt,
zelfs op de gevoelige plekken waar je na montage niet meer bij kunt komen. De gebruikte verf is op waterbasis en van een hoogwaardige kwaliteit.
Dakbedekking:
Het dak van Tuinhuis Lotta 300×250 is niet geschikt voor dakshingles i.v.m. de flauwe dakhelling.
Wij adviseren om te kiezen voor de EPDM rubberfolie voor een mooiere en permanente afwerklaag van sterke kwaliteit en lange levensduur.
Waarom een vloer:
De keuze van een vloer is belangrijk omdat je hiermee de koude ondergrond van tegels afsluit en daardoor condens voorkomt. Zo blijven de spullen binnen in het tuinhuis droog. De vloer is voorzien van drukgeïmpregneerde onderbalken.
De vloer dien je zelf op maat te zagen.
Voorkom vochtproblemen door te weinig ventilatie.
Juist in de winter is het belangrijk om te ventileren. De ventilatieroosters zijn dus heel nuttig en verlengen ook de levensduur van je spullen en het tuinhuis. Het is aan te bevelen om twee roosters te plaatsen in de wanden tegenover elkaar.
Plaats er 1 aan de bovenzijde en 1 aan de onderzijde. Doordat bij het opwarmen de lucht stijgt gaat dit automatisch door
de bovenste en wordt verse lucht door de onderste aangezogen.
Warme lucht bevat meer vocht en op die manier blijft je tuinhuis van binnen droger.
Tip:
Bescherm tijdens het bouwen van het Tuinhuis Lotta 300×250 de nog niet gebruikte planken tegen de zon,
Voorkom dat deze niet aan een zijde sterk drogen waardoor de planken krom gaan trekken.
Je kunt hiervoor een bouwzeil gebruiken of leg de planken in de schaduw.
Voor meer informatie zie ook pdf meest gestelde vragen in de downloads.








Gratis






