Categorie: Tuinhuis
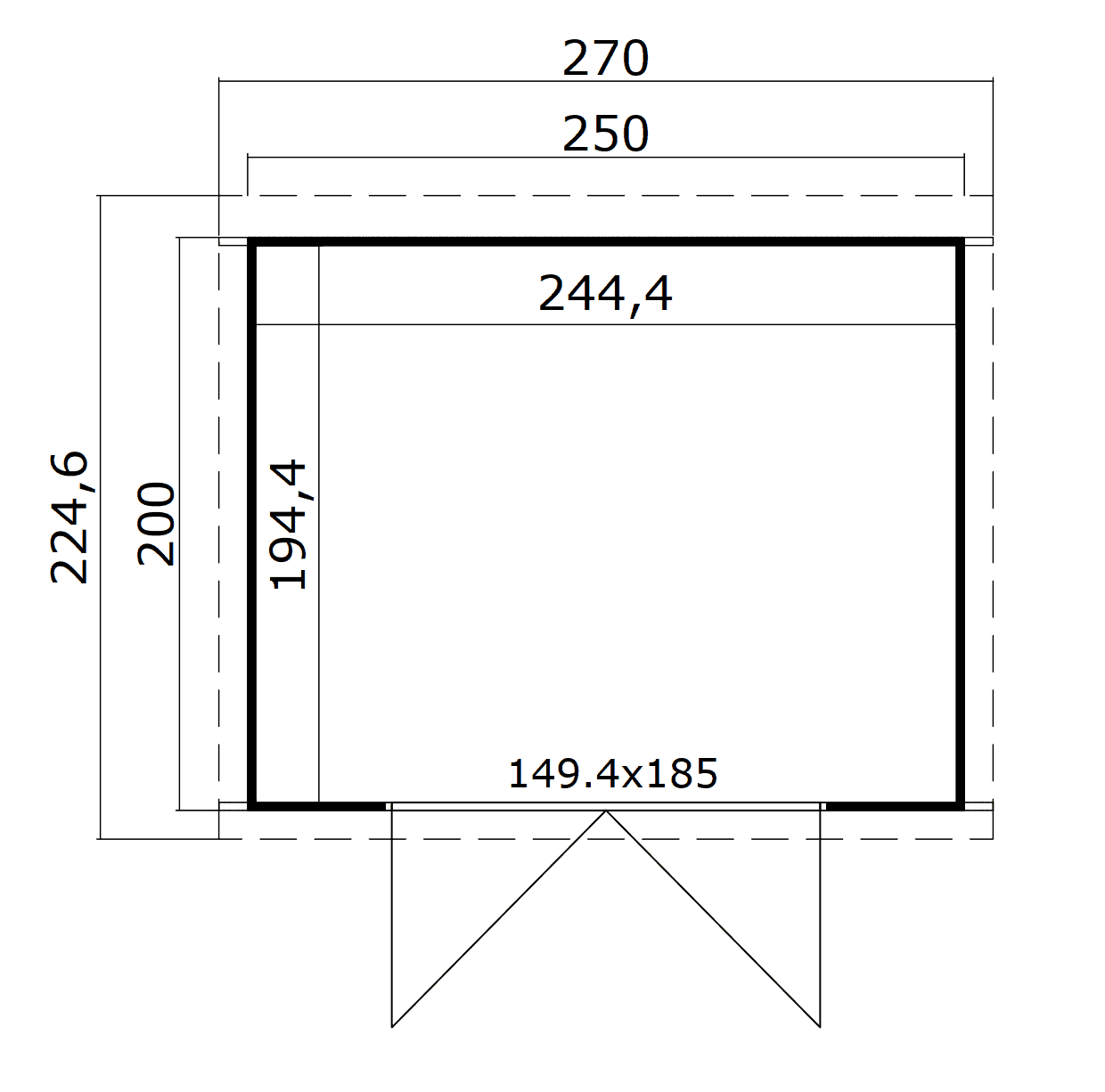
Type: Tuinhuis Mila 250×200 28 mm met lessenaarsdak.
Tuinhuis Mila is leverbaar in 5 uitvoeringen
-Onbehandeld
-Platinum Grey
-Platinum Grey met wit; deuren, ramen, gevellijstwerk, afdeklijsten en balkhout worden geleverd in de kleur crème wit.
-Carbon Grey
-Carbon Grey met wit; deuren, ramen, gevellijstwerk, afdeklijsten en balkhout worden geleverd in de kleur crème wit.
Uitvoering in onbehandeld:
Het hout is onbehandeld vurenhout en deze dien je te schilderen met transparante beits of dekkende beits.
De fabrikant adviseert ook de binnenzijde te schilderen om kromtrekken van de planken te voorkomen.
Door deze bewerking zal het tuinhuis langer meegaan en er fraaier uitzien.
Uitvoering Verfcoating :
Een verfbehandeling geeft uw tuinhuis een belangrijke eerste bescherming voor de duur van ongeveer 3 jaar. Het wandhout, dakbalken, lijstwerk en de deuren worden bij deze behandeling rondom (4- zijdig) gespoten. Het dakhout krijgt een enkelzijdige behandeling.
Het grote voordeel van deze behandeling is dat het hout hiermee een belangrijke eerste goede bescherming krijgt,
zelfs op de gevoelige plekken waar je na montage niet meer bij kunt komen. De gebruikte verf is op waterbasis en van een hoogwaardige kwaliteit.
Dakbedekking:
Het dak van Tuinhuis Mila is niet geschikt voor dakshingles i.v.m. de flauwe dakhelling.
Wij adviseren om te kiezen voor de EPDM rubberfolie voor een mooiere en permanente afwerklaag van sterke kwaliteit en lange levensduur.
Tip:
Bescherm tijdens het bouwen van het Tuinhuis Mila de nog niet gebruikte planken tegen de zon,.
Voorkom dat deze niet aan een zijde sterk drogen waardoor de planken krom gaan trekken.
Je kunt hiervoor een bouwzeil gebruiken of leg de planken in de schaduw.
Voor meer informatie zie ook pdf meest gestelde vragen in de downloads.









Gratis






