Categorie: Tuinhuis
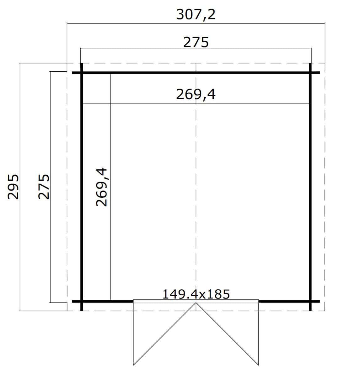
Type: Tuinhuis Norah 275×275 met zadeldak en dubbele deur
Uitvoering in onbehandeld:
Het hout van Tuinhuis Norah 275×275 is onbehandeld vurenhout en deze dien je te schilderen met transparante beits of dekkende beits. De fabrikant adviseert ook de binnenzijde te schilderen om kromtrekken van de planken te voorkomen. Door deze bewerking zal het tuinhuis langer meegaan en er fraaier uitzien.
Uitvoering in geïmpregneerd.
Door tuinhuis Norah 275×275 in druk geïmpregneerd hout te bestellen kies je voor een complete behandeling. Alle planken worden druk geïmpregneerd. En zo worden alle planken, gaten en kieren hierdoor behandeld. Hierdoor voorkom je houtrot en schimmel en het verlengt de levensduur van je tuinhuis. Je hoeft de blokhut niet direct te schilderen nadat je deze hebt gemonteerd. Binnen een jaar moet je wel de tweede en derde laag verf of beits aan de buitenzijde aanbrengen. Indien je het tuinhuis geïmpregneerd bestelt, komt het hout soms vochtig binnen en is de montage soms wat lastiger doordat het hout is uitgezet.
impregneren heeft zeker voordelen, maar ook nadelen.
Voordelen:
Langere levensduur van Tuinhuis Norah 275×275.
Een zeer goede bescherming tegen schimmels, insecten en houtrot.
Natuurlijke kleur.
Nadelen:
Meer krimp en uitzetting, waarbij krimp en droogtescheuren kunnen ontstaan. Deze vallen binnen de kwaliteitsnormen.
Kans op kromtrekken van hout en deuren door ongelijke vochtigheid.
Montage van Tuinhuis Norah 275×275 is minder makkelijk doordat de planken nog vol zitten met vocht en daardoor krom kunnen trekken of klemmen.
Advies:
Schilder tuinhuis Norah 275×275 altijd binnen een jaar met dekkende of transparante beits met minimaal 2 lagen. 3 lagen is nog duurzamer.
Uitvoering met verf:
Het hout wordt met 1 laag verf behandeld en afhankelijk van de standplaats is het hout van je tuinhuis 3 tot 5 jaar beschermd. Je hebt mooiere kleuren dan de gedompelde uitvoering en de tegenkleur crème wit. Je tuinhuis wordt in een water gedragen, semi-filmvormend, transparante verf geleverd. Deze is waterafstotend en mat van kleur, zodoende blijft er toch een mooie houtstructuur zichtbaar. Je kunt voor de wanden van het tuinhuis kiezen uit twee kleuren. Alle andere onderdelen zoals deuren, ramen, gevellijstwerk, afdeklijsten en balkhout worden geleverd in de kleur crème wit. De binnenvloer kan niet in geschilderd worden geleverd, wel in een gedompelde uitvoering. Het hout in de geschilderde uitvoering komt droog binnen, zodat je gelijk aan de slag kun met de montage.
Tip: Bescherm tijdens het bouwen de nog niet gebruikte planken tegen de zon, zodat ze niet aan een zijde sterk drogen waardoor de planken krom gaan trekken. Je kunt hiervoor een bouwzeil gebruiken of leg de planken in de schaduw.
Voor meer informatie zie ook pdf meest gestelde vragen in de downloads.







Gratis




