Categorie: Tuinhuis
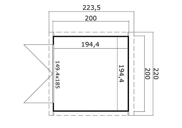
Tuinhuis Kibo 1 200×200 28 mm met lessenaarsdak.
Dit model onderscheidt zich door:
– raam boven de deur
– brede dubbele draaideur voor een ruim entree.
Tuinhuis Kibo 1 is leverbaar in 5 uitvoeringen
-Onbehandeld
-Platinum Grey
-Platinum Grey met wit; deuren, ramen, gevellijstwerk, afdeklijsten en balkhout worden geleverd in de kleur crème wit.
-Carbon Grey
-Carbon Grey met wit; deuren, ramen, gevellijstwerk, afdeklijsten en balkhout worden geleverd in de kleur crème wit.
Uitvoering in onbehandeld:
Het hout is onbehandeld vurenhout en deze dien je te schilderen met transparante beits of dekkende beits.
De fabrikant adviseert ook de binnenzijde te schilderen om kromtrekken van de planken te voorkomen.
Door deze bewerking zal het tuinhuis langer meegaan en er fraaier uitzien.
Uitvoering Verfcoating :
Een verfbehandeling geeft uw tuinhuis een belangrijke eerste bescherming voor de duur van ongeveer 3 jaar. Het wandhout, dakbalken, lijstwerk en de deuren worden bij deze behandeling rondom (4- zijdig) gespoten. Het dakhout krijgt een enkelzijdige behandeling.
Het grote voordeel van deze behandeling is dat het hout hiermee een belangrijke eerste goede bescherming krijgt,
zelfs op de gevoelige plekken waar je na montage niet meer bij kunt komen. De gebruikte verf is op waterbasis en van een hoogwaardige kwaliteit.
Tip Tuinhuis Kibo 1 200×200
Bescherm tijdens het bouwen van het Tuinhuis Kibo de nog niet gebruikte planken tegen de zon,
Voorkom dat deze niet aan een zijde sterk drogen waardoor de planken krom gaan trekken.
Je kunt hiervoor een bouwzeil gebruiken of leg de planken in de schaduw.
Dakbedekking:
Het dak van Tuinhuis Kibo is niet geschikt voor dakshingles i.v.m. de flauwe dakhelling.
Als dakbedekking wordt er bij het huisje asfaltpapier meegeleverd deze is echter alleen geschikt voor tijdelijk gebruik.
Wij adviseren om te kiezen voor de EPDM rubberfolie voor een mooiere en permanente afwerklaag van sterke kwaliteit en lange levensduur dan asfaltpapier.
Het eventuele meegeleverd asfaltpapier dient dan als onderlaag.
Voor meer informatie zie ook pdf meest gestelde vragen in de downloads.
Kibo is leverbaar in 3 maatvoeringen










Gratis







