Categorie: Tuinhuis
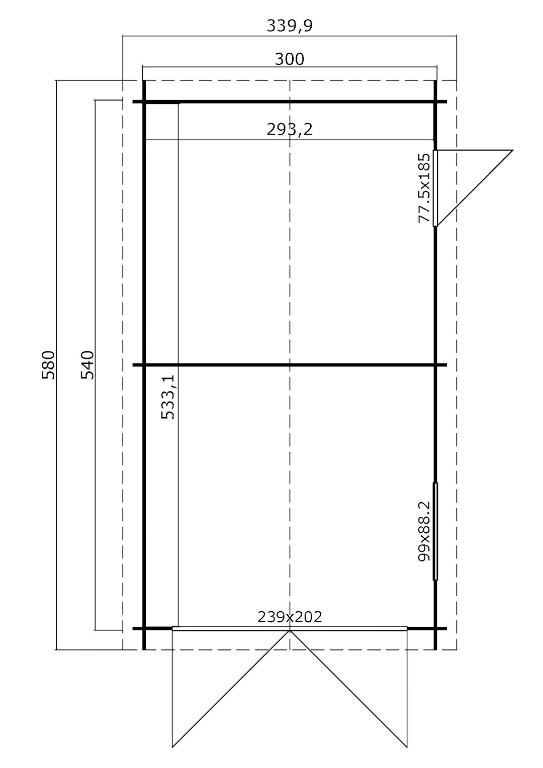
Type: Garage Dillon is een veilige plek voor je auto, maar ook mooie werkruimte.
Uitvoering in onbehandeld:
Het hout van garage Dillon is onbehandeld vurenhout en deze dien je te schilderen met transparante beits of dekkende beits. De fabrikant adviseert ook de binnenzijde te schilderen om kromtrekken van de planken te voorkomen. Door deze bewerking zal het tuinhuis langer meegaan en er fraaier uitzien.
Uitvoering garage Dillon in geïmpregneerd:
Door garage Dillon in druk geïmpregneerd hout te bestellen kies je voor een complete behandeling want alle planken worden druk geïmpregneerd. Hiermee worden alle planken, gaten en kieren hierdoor behandeld. Hierdoor voorkom je houtrot en schimmel en het verlengt de levensduur van je garage. Je hoeft de garage Dillon niet direct te schilderen nadat je deze hebt gemonteerd. Maar binnen een jaar moet je wel de tweede en derde laag verf of beits aan de buitenzijde aanbrengen. Want als je garage Dillon in geïmpregneerd bestelt, komt het hout soms vochtig binnen en is de montage wat lastiger doordat het hout is uitgezet.
impregneren van garage Dillon heeft zeker voordelen, maar ook nadelen.
Voordelen:
Langere levensduur van de garage.
Een zeer goede bescherming tegen schimmels, insecten en houtrot.
Natuurlijke kleur.
Nadelen:
Meer krimp en uitzetting, waarbij krimp en droogtescheuren kunnen ontstaan. Deze vallen binnen de kwaliteitsnormen.
Kans op kromtrekken van hout en deuren door ongelijke vochtigheid.
Montage van de garage is minder makkelijk doordat de planken nog vol zitten met vocht en daardoor krom kunnen trekken of klemmen.
Advies:
Schilder garage Dillon altijd binnen een jaar met dekkende of transparante beits met minimaal 2 lagen. 3 lagen is nog duurzamer.
Uitvoering met verf:
Het hout van garage Dillon wordt met 1 laag verf behandeld en afhankelijk van de standplaats is het hout van je tuinhuis 3 tot 5 jaar beschermd. Je hebt mooiere kleuren dan de gedompelde uitvoering en de tegenkleur crème wit op de kozijnen en boei delen. Je tuinhuis wordt in een water gedragen, semi-filmvormend, transparante verf geleverd. Deze is waterafstotend en mat van kleur, zodoende blijft er toch een mooie houtstructuur zichtbaar. Je kunt voor de wanden van het tuinhuis kiezen uit twee kleuren. Alle andere onderdelen zoals deuren, ramen, gevellijstwerk, afdeklijsten en balkhout worden geleverd in de kleur crème wit. Het hout in de geschilderde uitvoering komt droog binnen, zodat je gelijk aan de slag kun met de montage.
Tip:
Bescherm tijdens het bouwen de nog niet gebruikte planken tegen de zon, zodat ze niet aan een zijde sterk drogen waardoor de planken krom gaan trekken. Je kunt hiervoor een bouwzeil gebruiken of leg de planken in de schaduw.
Voor meer informatie zie ook pdf meest gestelde vragen in de downloads.






Gratis




